اولین کلیسای موحد(IGLESIA Y ESCUELA UNITARIA)


معمار:لویی کان

مکان:نیویورک

زمان:۱۹۵۹-۱۹۶۷


لویی کان در طرح این کلیسا به اظهار مفاهیم واقع گرایانه ی خود را درباره ی واقعیت عمومی و جزئیات شکل ها و ترکیب معماری می پردازد.

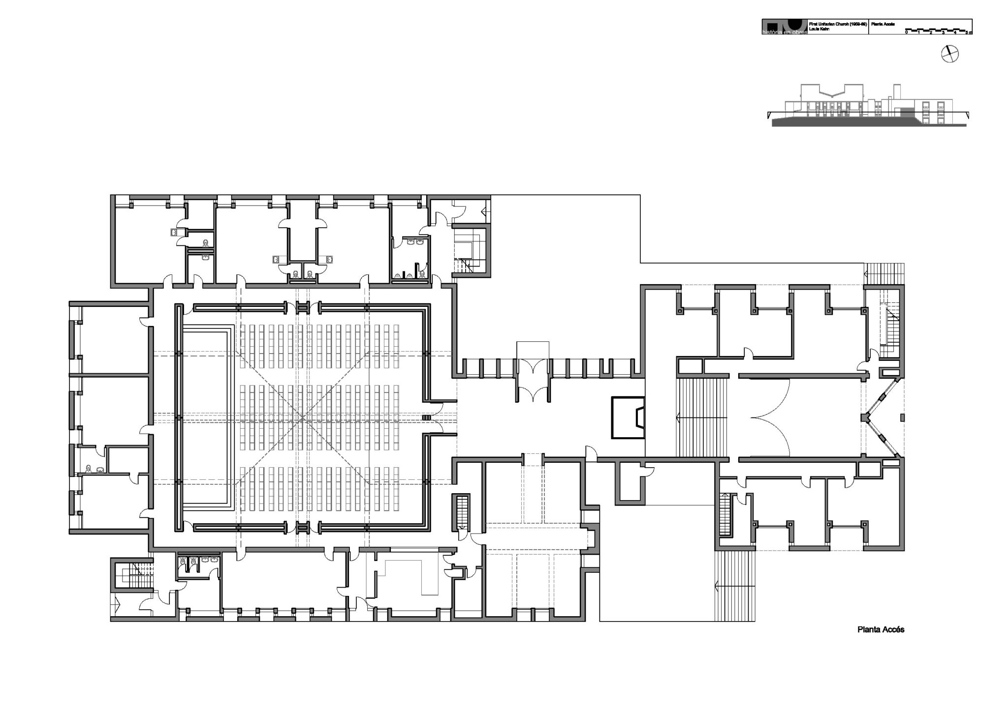
او قبل از رسیدن به راه حل نهایی ،بروی یک سری طرح های اسکیس مانند کار می کند که در هر مرحله دائما به مصالحه و آشتی دادن این دو واقعیت نزدیک تر می شوند.کان در این حرکت،همواره برنامه ی اولیه ی خود را که عبارت بود از تالار مرکزی عبادت احاطه شده به وسیله ی فضای آموزشی مدرسه ،حفظ کرده است.


اولین کلیسای موحد
اولین کلیسای موحد

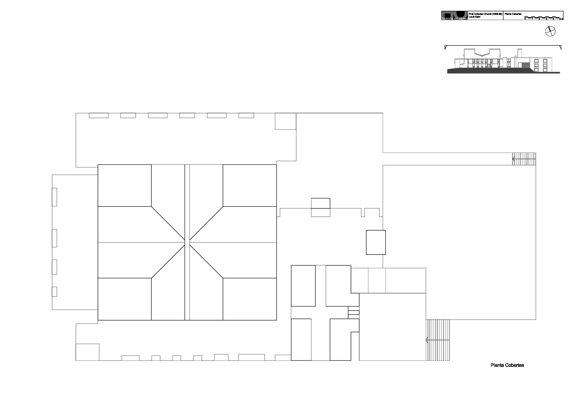
تالار بزرگ اجتماعات از دیوارهای بلوکی پشم شیشه ای ساخته شده و برفراز این تالار چهار نورگیر تعبیه شده که نور را به داخل پخش می کنند.کارکرد دیوارها چنان است که در برگیرنده ی است که در برگیرنده ی کانال های ورودی و خروجی تهویه ی هوا می باشند.اجزای عمودی نیز دارای کانال های تخلیه ی هوای کثیف هستند.در اطراف این تالار کلاس های درس،کتابخانه و آشپزخانه ها واقع شده اند.هر کدام از این مکان ها دارای ابعادی متناسب با کاربری آن است.نماهای خارجی با سایه و روشن ها درخشش و جلوه ی بیشتری دارند و مصالح به کار رفته در آنها عبارتند از:سیمان-بلوک های لعاب دار-پشم شیشه ای و آجر.


منبع: کتاب لویی کان

منبع تصاویر: https://jabenitezfornell.blogspot.com