مقدمه

کودک یا نوجوان بودن، تجربه‌ای ناب و سرشار از انرژی و خیال‌پردازی است؛ دوره‌ای که ذهن آماده یادگیری و قلب مملو از شوق کشف است. یکی از بزرگ‌ترین دغدغه‌های والدین، فراهم کردن محیطی امن، مثبت و الهام‌بخش برای رشد تحصیلی و شخصیتی فرزندانشان است. مدرسه آمریکایی کوزوو (American School of Kosova – ASK) دقیقاً با همین رویکرد طراحی شده تا مدرسه، تنها یک مکان آموزشی نباشد بلکه فضایی برای بازی، تعامل، خلاقیت و یادگیری عمیق باشد.


مدرسه آمریکایی کوزوو | American School of Kosova
مدرسه آمریکایی کوزوو | American School of Kosova

طراحی و ویژگی‌های معماری

پردیس جدید مدرسه آمریکایی کوزوو با الهام از استانداردهای آموزشی بین‌المللی و در نظر گرفتن نیازهای روحی و جسمی دانش‌آموزان شکل گرفته است. نور طبیعی در همه فضاها، استفاده از رنگ‌های متنوع و حضور عناصر سبز در طراحی داخلی، سبب شده محیطی پرانرژی، شاد و خلاقانه شکل بگیرد.

مدرسه آمریکایی کوزوو | American School of Kosova
مدرسه آمریکایی کوزوو | American School of Kosova

فضای چندمنظوره

این مجموعه دارای فضاهای چندمنظوره است که امکانات آموزشی، ورزشی و فرهنگی را در یک مکان متمرکز می‌کند. از حیاط گرفته تا فضاهای داخلی، همگی برای تشویق دانش‌آموزان به فعالیت، بازی و یادگیری فعال طراحی شده‌اند.

حیاط و فضای باز

حیاط مدرسه با «اُئازهای دایره‌ای‌شکل» طراحی شده؛ بخش‌هایی که یا پوشیده از گیاهان سبز هستند یا محلی برای بازی‌های کودکانه. این اُئازها به‌طور هوشمندانه به هم متصل‌اند و فضایی پویا و زنده می‌سازند. همچنین وجود یک آمفی‌تئاتر چندمنظوره، زمین ورزشی روباز و سالن سرپوشیده، امکان برگزاری رویدادها و فعالیت‌های مختلف ورزشی و فرهنگی را فراهم کرده است.


مدرسه آمریکایی کوزوو | American School of Kosova
مدرسه آمریکایی کوزوو | American School of Kosova

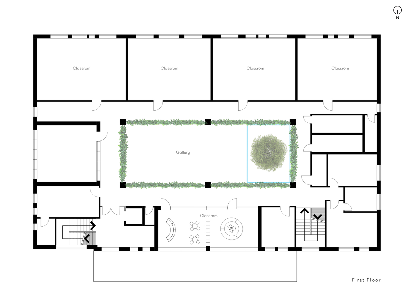
بخش مهدکودک

فضای مهدکودک دارای نگارخانه‌ای مرکزی است که از طریق یک آتریوم نورگیر، بخش‌های مختلف را به هم متصل می‌کند. در میانه این آتریوم، یک درخت زیتون چندساله قرار دارد که نماد رشد، تداوم و انتقال تجربه از نسلی به نسل دیگر است. این طراحی خلاقانه حس امنیت و تعلق خاطر را برای کودکان ایجاد می‌کند و یادگیری را به تجربه‌ای لذت‌بخش بدل می‌سازد.

مساحت بخش مهدکودک ۱۴۸۰ مترمربع است و شامل دو بخش مجزا با استانداردهای طراحی بین‌المللی برای مراکز آموزشی می‌شود.


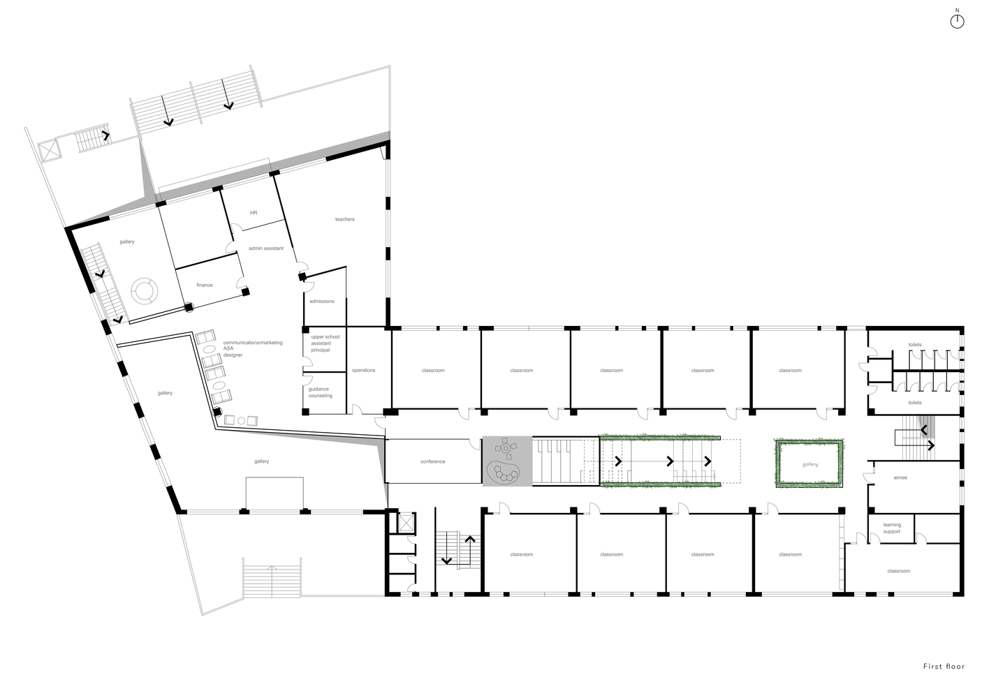
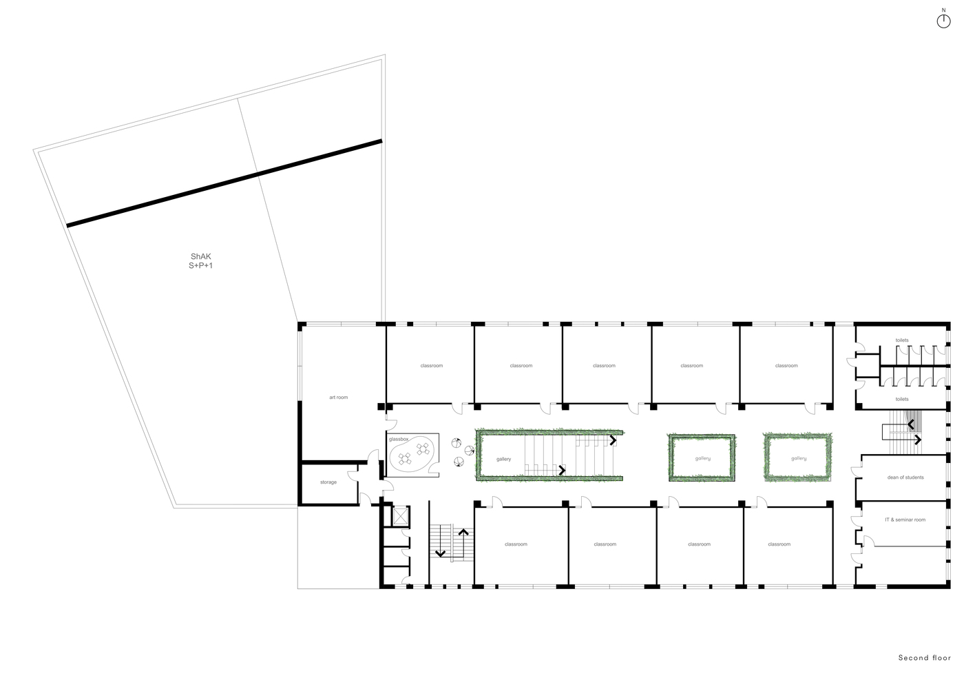
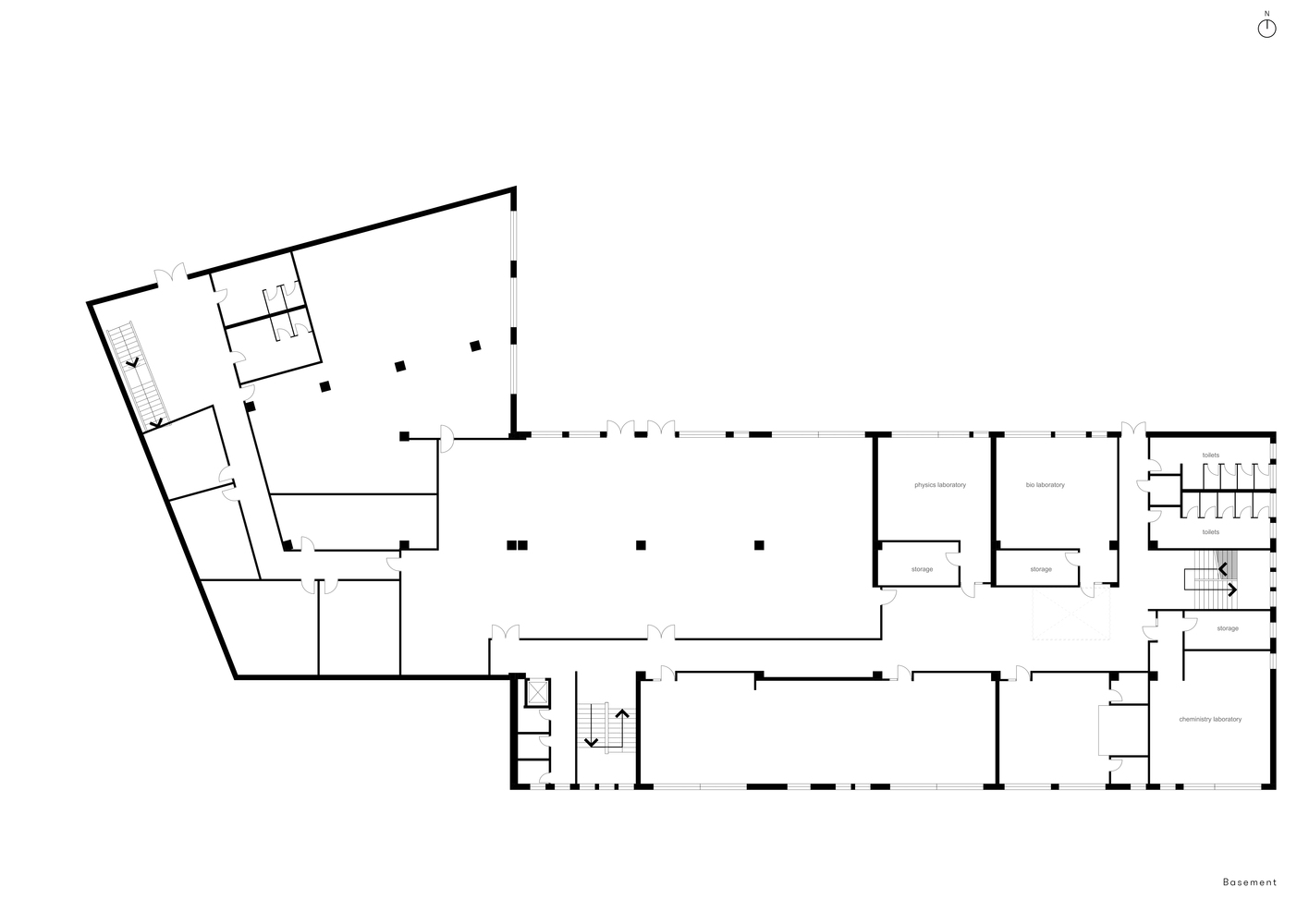
بخش دبیرستان

بخش دبیرستان مدرسه آمریکایی کوزوو مساحتی بالغ بر ۶۶۰۵ مترمربع دارد و برای نوجوانان طراحی شده است. ترکیب عناصر معماری افقی و عمودی بزرگ، به این فضا هویتی مدرن و الهام‌بخش می‌دهد.

  • طبقه زیرزمین شامل آزمایشگاه‌ها، فضاهای فنی، آشپزخانه و بوفه است.
  • طبقه همکف به‌عنوان ورودی اصلی، فضایی انعطاف‌پذیر برای برگزاری رویدادها دارد و با آمفی‌تئاتری سه‌گالری به سه طبقه فوقانی متصل می‌شود. نور طبیعی که از سقف وارد می‌شود، تمام فضا را روشن و یکپارچه کرده است.

هر بخش دبیرستان با رنگی مشخص تعریف شده و این تنوع رنگی، محیطی زنده و پویا برای یادگیری فراهم می‌کند.


چشم‌انداز آینده

پردیس مدرسه زمانی کامل خواهد شد که ساختمان مدرسه ابتدایی و تأسیسات چندمنظوره دیگر نیز به مجموعه افزوده شوند. در آن زمان، ASK یک کمپ آموزشی جامع خواهد بود که تمامی مقاطع تحصیلی را در بر می‌گیرد و الگویی برای مدارس مدرن در اروپا به شمار خواهد رفت.