در دل چشم‌اندازهای بکر و آرام منطقه جنوب دوون (Devon)، کلیسای سنگی کوچکی که روزی صدای دعاهای جماعتی در آن طنین‌انداز بود، اکنون به خانه‌ای گرم و خانوادگی تبدیل شده است. این پروژه با هدایت تیم خلاق استودیو طراحی جاناتان تاکی (Jonathan Tuckey Design) با هدف بازگرداندن اصالت از دست‌رفته‌ی بنا و در عین حال، پاسخ‌گویی به نیازهای زندگی معاصر انجام شد.

کلیسای قدیمی | Old Chapel
کلیسای قدیمی | Old Chapel

از خانه‌ای قدیمی تا فرصتی برای بازآفرینی

این کلیسا که قدمت تغییر کاربری‌اش به نیمه اول قرن بیستم بازمی‌گردد، در دهه ۱۹۷۰ به مسکن تبدیل شد و در دهه ۹۰ میلادی دستخوش اصلاحاتی شد که اغلب فاقد ارزش معماری یا تاریخی بودند. پروژه اخیر با نگاهی عمیق به هویت اصلی کلیسا، کوشید تا گذشته را به زبان امروزی بازگو کند؛ نه با پاک کردن رد پای زمان، بلکه با انتخاب‌ دقیق آنچه باید بماند و آنچه باید حذف شود.

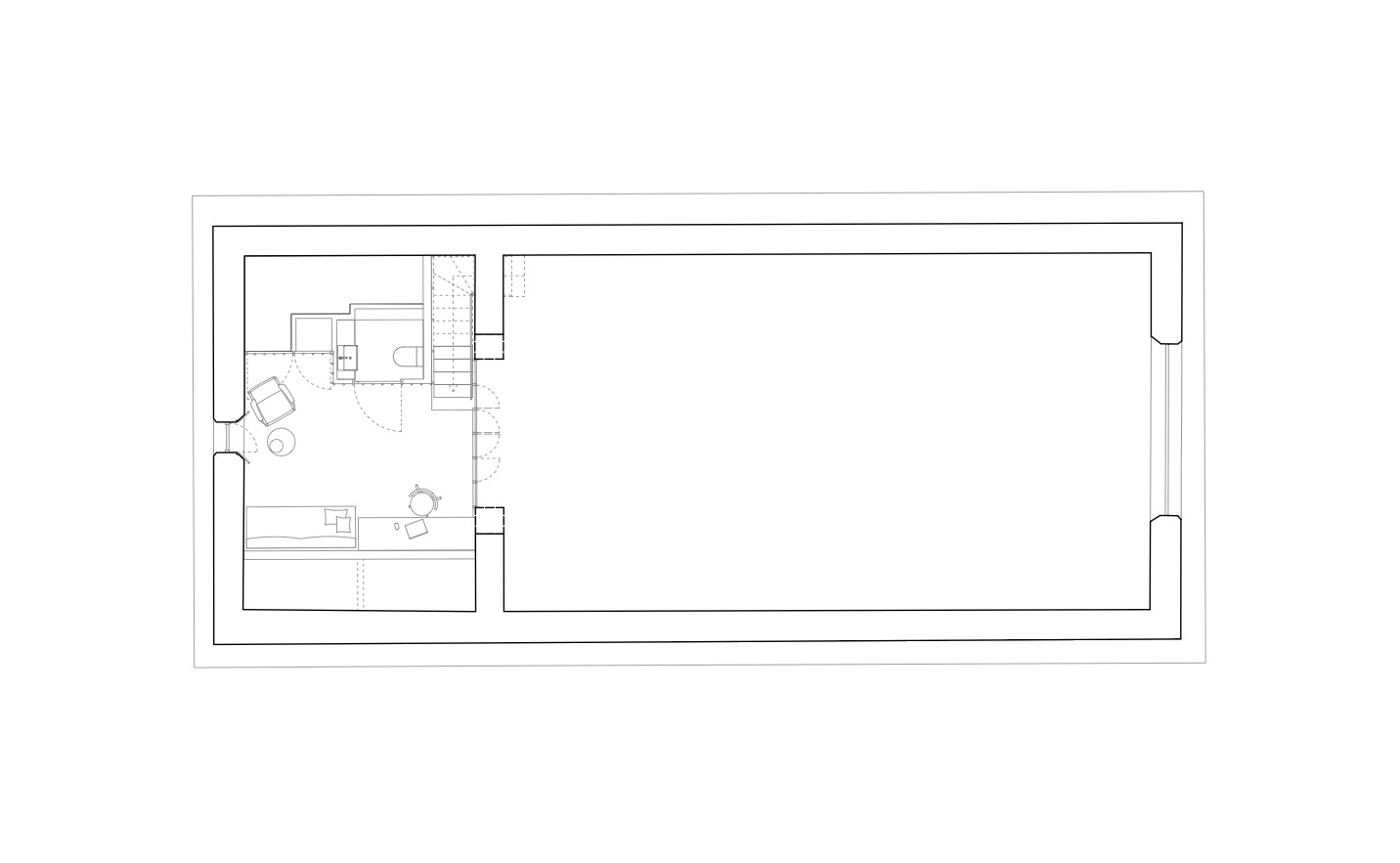
پلان طبقه اول کلیسای قدیمی | Old Chapel
پلان طبقه اول کلیسای قدیمی | Old Chapel

حذف اضافات و بازیابی جریان فضایی

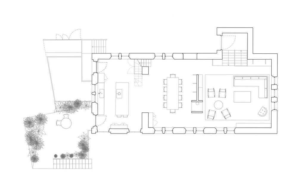
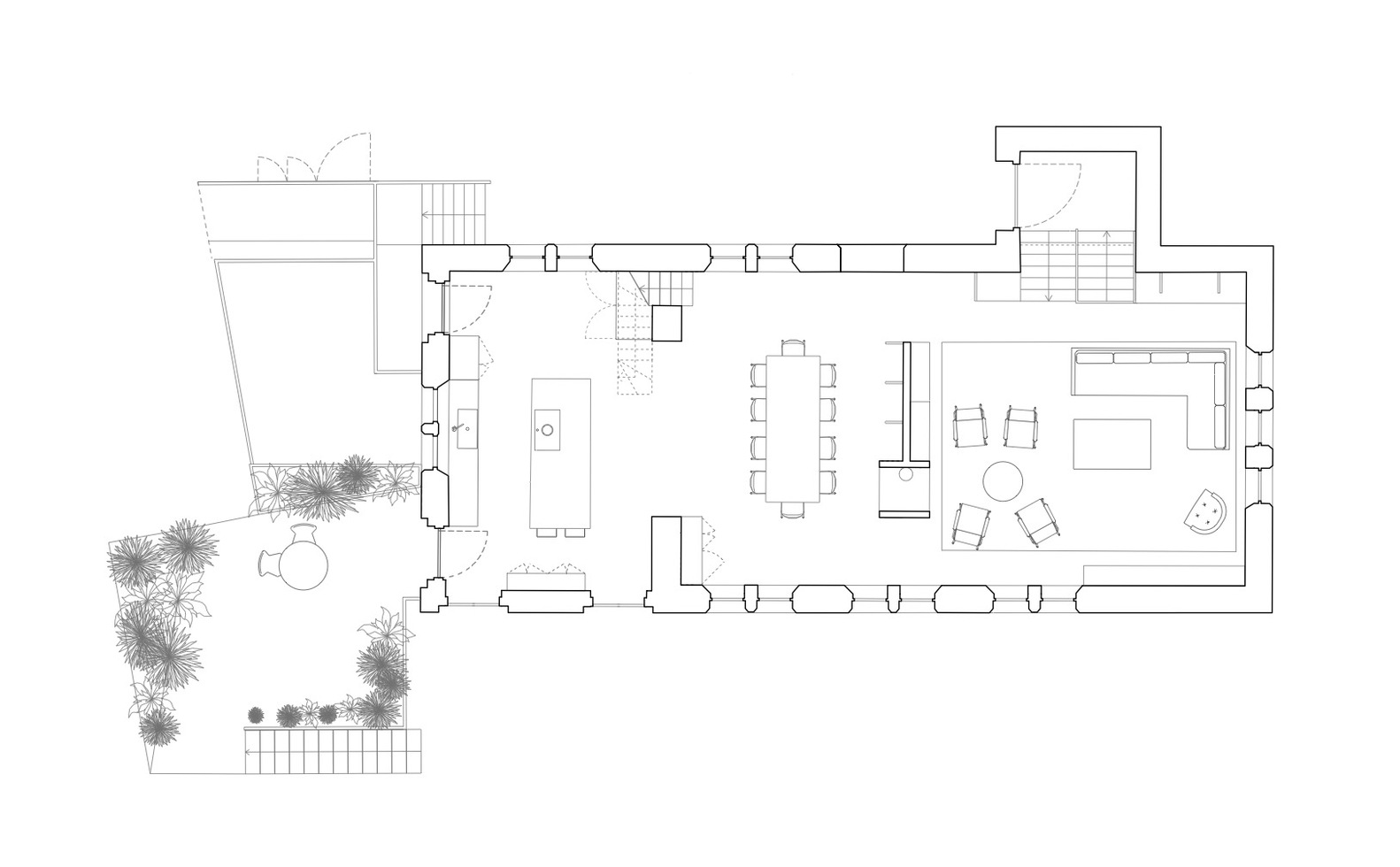
نخستین اقدام طراحان، حذف مداخلات نامتناسب دهه ۹۰ و بازیابی ورودی تاریخی در ضلع شمالی کلیسا بود؛ ورودی‌ای که اکنون به عنوان راه‌پله‌ای اصلی، قلب جریان حرکتی خانه را شکل می‌دهد. این بازسازی هوشمندانه باعث شد تا پیوندی روان و طبیعی میان فضای عمومی طبقه اول (نشیمن، ناهارخوری، آشپزخانه) و فضاهای خصوصی طبقه همکف (اتاق‌های خواب) برقرار شود.

ورودی کلیسای قدیمی | Old Chapel
ورودی کلیسای قدیمی | Old Chapel

گسترشی آرام و همگون با طبیعت

در گوشه جنوب‌غربی کلیسا و درست در مرز دیوار سنگی کوتاه، حجمی یک‌طبقه به بنا افزوده شد؛ حجمی که نه تنها متواضعانه در خدمت معماری موجود است، بلکه عملکردی دوگانه دارد: گسترش فضای همکف و ایجاد تراسی در طبقه بالا. این بخش جدید، با نور طبیعی فراوان، فضای سبز و دسترسی مناسب، روح تازه‌ای در فضای داخلی دمیده است.

احترام به اصالت درون کلیسا

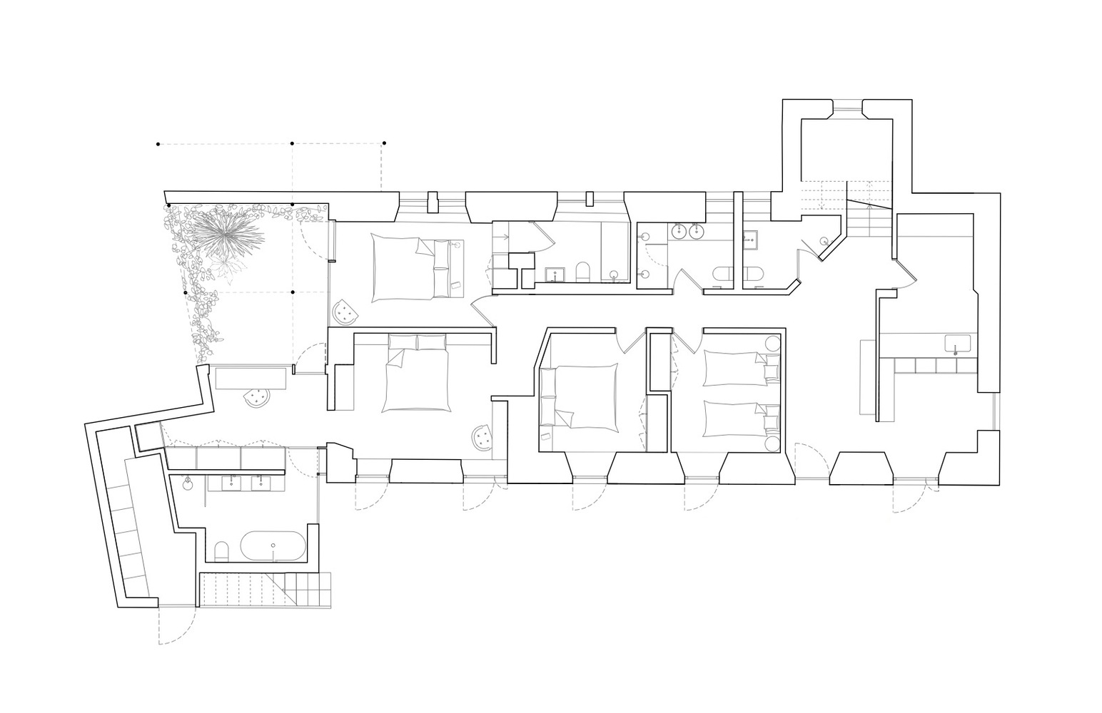
در طراحی داخلی، جاناتان تاکی و تیمش با نگاهی حساس و شاعرانه، طرح طبقات همکف را بازسازی کردند. دیوارهای آجری با نیش‌هایی کاربردی، فضای ذخیره‌سازی را در دل خود جای داده‌اند، و چهار اتاق خواب به همراه حمام‌هایی با طراحی ملایم و مصالح هماهنگ، فضایی متین و آرام را خلق کرده‌اند که هنوز هم حس و حال یک عبادتگاه را در خود حفظ کرده است.

کلیسای قدیمی | Old Chapel
کلیسای قدیمی | Old Chapel

سقف بلند، فضاهای باز و جزئیات معمارانه

طبقه اول، فضایی باز و یکپارچه دارد که برای گردهمایی خانواده در قالب نشیمن، ناهارخوری و آشپزخانه طراحی شده است. در بالای این طبقه، یک اتاق خواب اضافی در زیر سقف شیب‌دار بنا گنجانده شده و یک جعبه چوبی بر فراز آشپزخانه، پشت دیوار آجری کلیسا، مانند عنصری شاعرانه یادآور منبر یا گنبد کلیساهای سنتی است.


نتیجه‌گیری

بازسازی کلیسای قدیمی در جنوب دوون، تنها پروژه‌ای برای تبدیل یک بنای تاریخی به خانه‌ای امروزی نبود؛ بلکه سفری بود از گذشته به حال، از معنا به عملکرد. پروژه‌ای که نشان می‌دهد چطور معماری می‌تواند با احترام به تاریخ، آینده‌ای تازه برای فضاهای فراموش‌شده رقم بزند.